Product 1

Residential Elevators Price in Bangladesh

Model: HGM-P52

Specification:

Ceiling: Gold stainless steel, acrylic  lighting
Cabin Wall: Center plate is mirrored, etched, gold. Auxiliary plate are hairline, gold.
Handrail: Stainless steel round tube
Floor: PVC(Standard), Marble(Optional)

Catalog Send Inquiry

Product Details


Residential Elevators Price in Bangladesh

 

Specification:

Ceiling: Gold stainless steel, acrylic  lighting
Cabin Wall: Center plate is mirrored, etched, gold. Auxiliary plate are hairline, gold.
Handrail: Stainless steel round tube
Floor: PVC(Standard), Marble(Optional)

 

 

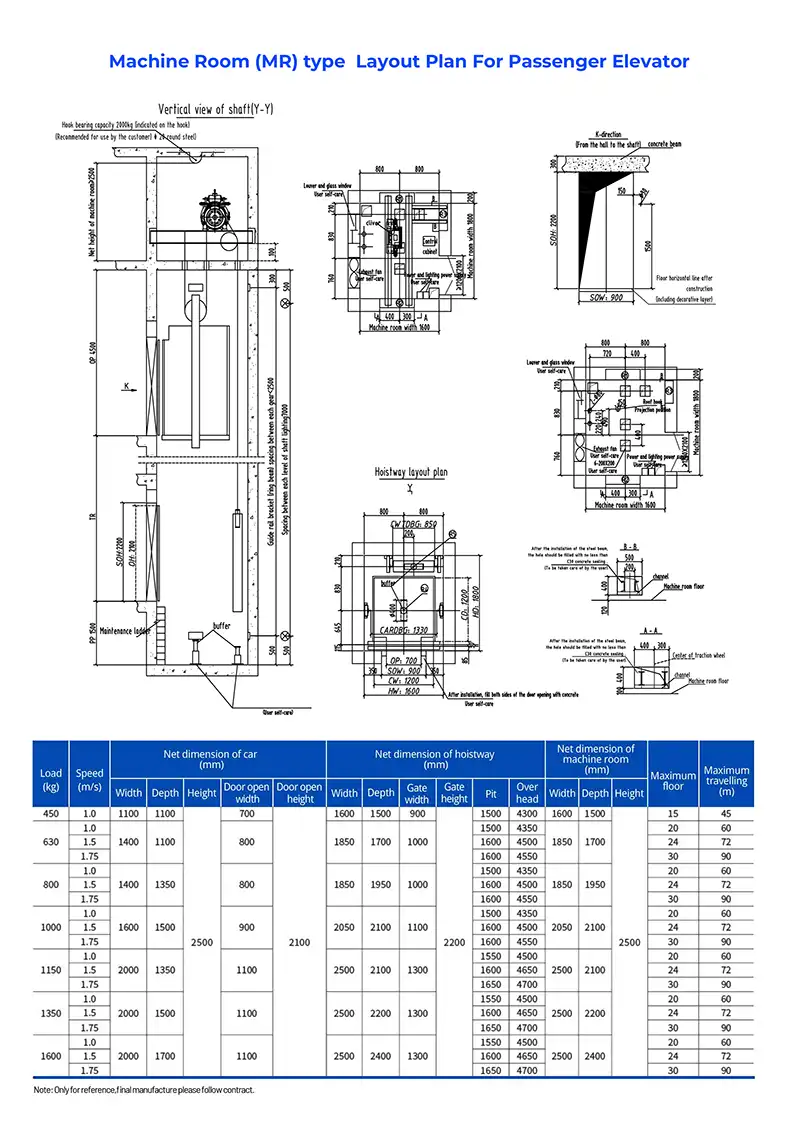
Drawings & Parameters:

Drawings & Parameters

Related Products


Send Inquiry


×