Product 1

Energy-Efficient Hospital Elevator

Model: HGM-H05

Specifications:

Ceiling: Hairline stainless steel, LED lights
Cabin Wall: Hairline stainless steel
Cabin Door: Hairline stainless steel
Handrail: Stainless steel flat double armrest
Floor: PVC, Marble (Optional)

Catalog Send Inquiry

Product Details


Energy-Efficient Hospital Elevator 

Specifications:

Ceiling: Hairline stainless steel, LED lights
Cabin Wall: Hairline stainless steel
Cabin Door: Hairline stainless steel
Handrail: Stainless steel flat double armrest
Floor: PVC, Marble (Optional)

Modern hospital lifts are designed for optimal energy efficiency. Features such as regenerative drives, low-energy lighting, and efficient motors reduce overall energy consumption. This is particularly important for hospitals, where elevators operate continuously around the clock.

Safety Features

Safety is a critical factor in hospital elevators. These lifts are equipped with:

  • Automatic Rescue Device (ARD) to move the elevator to the nearest floor during power failure.

  • Overload sensors to prevent unsafe use.

  • Fire emergency mode for safe evacuation.

  • Ventilation systems to ensure air circulation inside the elevator car.

Design and Comfort

Hospital elevators are not only functional but also designed for comfort and hygiene:

  • Anti-bacterial coatings on walls and buttons.

  • Smooth ride performance for patient comfort, especially for those on stretchers.

  • Noise-free operation to maintain a calm healthcare environment.

  • Stainless steel interiors for easy cleaning and durability.

 

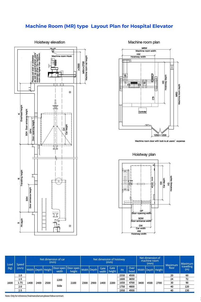
Layout Drawings & Parameters:

Layout Drawings & Parameters:

Related Products


Send Inquiry


×