Product 1

Industrial Goods Lift - High Capacity Cargo Elevators

Model: HGM-F03

Specifications:

Ceiling:
 Painted steel
Ventilation: Circular fan
Cabin Wall: Painted steel
Cabin Door: Painted steel, 4 panel
Handrail: None
Floor: Chequered plate steel

Catalog Send Inquiry

Product Details


Industrial Goods Lift - High Capacity Cargo Elevators

 

Cargo Lifts: Powering Industrial Vertical Transportation
Cargo lifts (also called freight elevators or goods lifts) are engineered to transport heavy materials, pallets, and equipment across floors in commercial, industrial, and residential buildings. Unlike passenger elevators, these robust systems prioritize high weight capacitydurable construction, and operational efficiency to handle demanding logistics in warehouses, factories, and high-rise structures.

Core Applications

  • ✅ Warehouses/Factories: Move pallets (up to 10,000 kg), machinery, raw materials.

  • ✅ Retail & Malls: Stock transport between storerooms and sales floors.

  • ✅ High-Rise Residential Buildings: Furniture/appliance delivery in apartments.

  • ✅ Hospitals & Airports: Laundry, catering, and baggage logistics.

Engineering Excellence

Feature Specification
Weight Capacity 1,000–20,000 kg
Elevator Car Size Custom (Up to 5m depth × 3m width)
Door Types Industrial sliding, collapsible gates
Speed 0.25–1.0 m/s (Safety-focused)
Energy Consumption 30–40% lower (Regenerative drives)

 

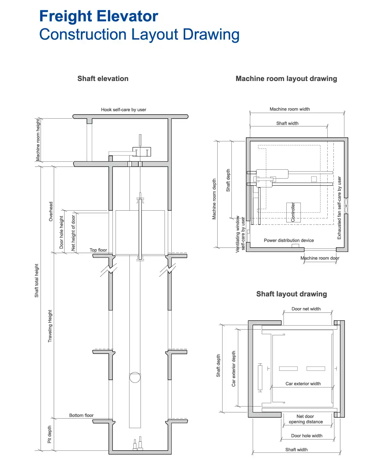
Drawings & Parameters:

freight lift drawings & Parameters

Related Products


Send Inquiry


×